Riante eengezinswoning met 5 slaapkamers, 2 badkamers en garage te huur in Purmerend, Weidevenne
Gelegen aan een rustige straat in de geliefde wijk Weidevenne, vindt u deze royale eengezinswoning aan de Amazonelaan. De woning combineert ruimte en comfort met een gunstige ligging op loopafstand van scholen, openbaar vervoer en winkelcentrum Van Damplein. Een ideale woning voor gezinnen of huurders die ruimte, luxe en bereikbaarheid waarderen.
Indeling
Via de entree bereikt u de straatgerichte, ruime open keuken van ca. 27 m². Deze is modern uitgevoerd en voorzien van diverse inbouwapparatuur, waaronder een vaatwasser, afzuigkap, vriezer, koelkast, combimagnetron, oven en een inductiekookplaat. Tevens voorzien van een Quooker. Dubbele taatsdeuren geven toegang tot de uitgebouwde, tuingerichte woonkamer van ruim 38 m². De massief hardhouten vloer van Afzeliahout, de lichtkoepel en de grote raampartijen zorgen voor een warme uitstraling en veel lichtinval. Vanuit de woonkamer leiden openslaande deuren naar de zonnige achtertuin op het westen, die tevens toegang biedt tot de garage met elektrische deur en meer dan voldoende ruimte voor een grote auto.
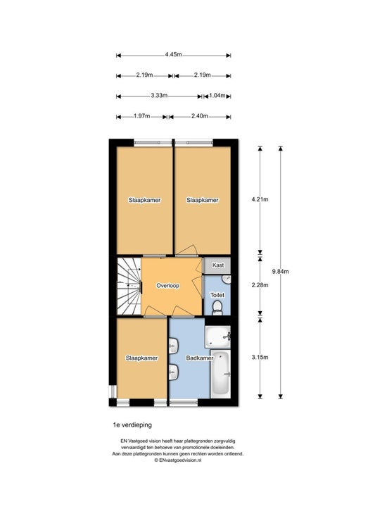
Op de eerste verdieping bevinden zich drie goed bemeten slaapkamers en een luxe badkamer met dubbele wastafels, inloopdouche en ligbad. Daarnaast is er een separaat toilet.
De tweede verdieping biedt nog eens twee ruime slaapkamers, waarvan één met een balkon op het westen, evenals een tweede badkamer met dubbele wastafel, inloopdouche en toilet. Hier vindt u tevens de wasmachineaansluiting.
Kenmerken
- De woning wordt zonder meubels verhuurd
- Huurprijs: € 2.500,- per maand
- Beschikbaar: per direct, onbepaalde tijd
- 5 slaapkamers
- 2 badkamers
- 3 toiletten
- Eigen garage met elektrische deur
- Shutters van Jasno en deels stoffering beschikbaar als service
- 3 airco-units (woonkamer en 2 slaapkamers)
- Achtertuin en balkon op het westen
Omgeving
Weidevenne staat bekend om haar ruime opzet en gezinsvriendelijke karakter. Voor de dagelijkse boodschappen is winkelcentrum Van Damplein dichtbij, en basisscholen zijn op loop- en fietsafstand bereikbaar. Het centrum van Purmerend en het NS-station liggen op enkele minuten afstand, met een snelle verbinding naar Amsterdam. Ook de uitvalswegen richting de hoofdstad en de rest van de Randstad zijn eenvoudig bereikbaar.







































