Te huur: ruime hoekwoning in de populaire woonwijk Purmer-Zuid. Deze goed onderhouden woning heeft drie slaapkamers, een aparte kastenkamer en een fijne, zonnige voor- en achtertuin. De woning is gelegen in een autoluw hofje, wat zorgt voor rust en veiligheid. Verhuur vindt plaats voor minimaal 12 en maximaal 27 maanden. De woning wordt zonder meubels verhuurd met raambekleding en verlichting.
Indeling:
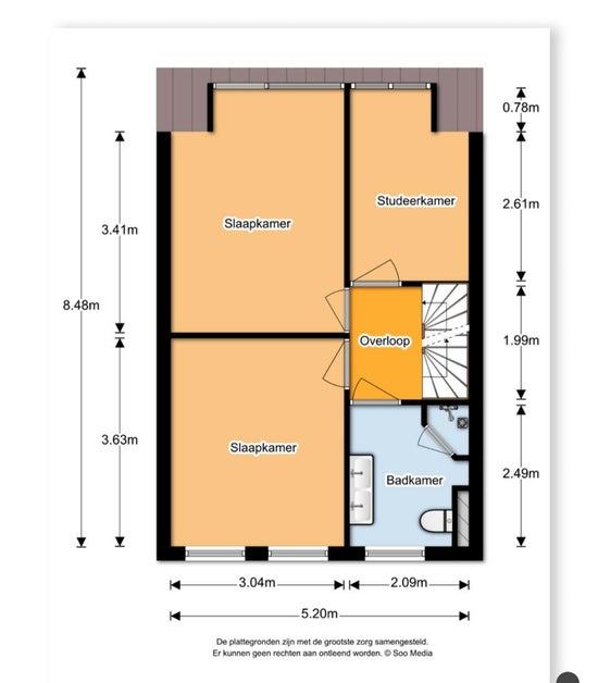
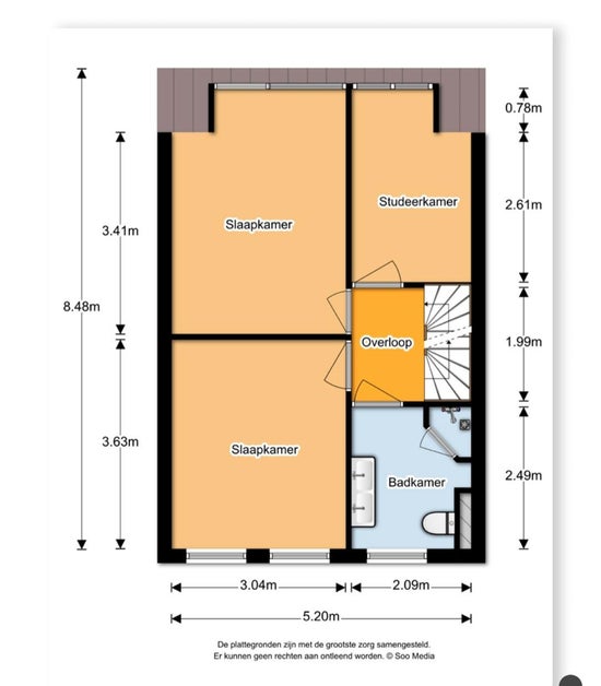
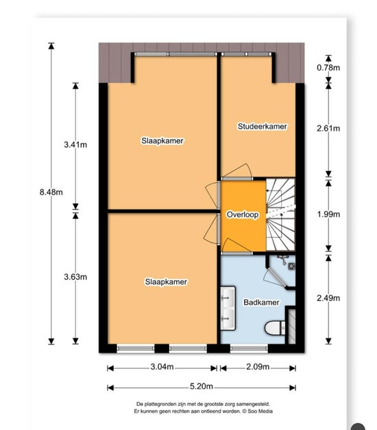
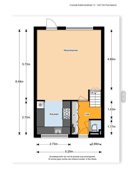
Via de voortuin op het zuiden betreedt u de woning. Via de entree met toilet en trapopgang naar de eerste verdieping, komt u in de sfeervolle, tuingerichte woonkamer met een mooie houten vloer en directe toegang tot de achtertuin. Aan de straatzijde bevindt zich de open keuken, compleet met alle benodigde inbouwapparatuur. Op de eerste verdieping zijn drie slaapkamers, waarvan één momenteel als kastenkamer wordt gebruikt (de kasten blijven achter). De nette badkamer is uitgerust met een inloopdouche, dubbele wastafel en toilet. De tweede verdieping beschikt over een voorzolder met wasmachineaansluiting en een ruime vierde slaapkamer met dakkapel en rolluiken.
Kenmerken:
- Hoekwoning in autoluw hofje
- Huurperiode: minimaal 12, maximaal 27 maanden (2 jaar + 3 maanden)
- Ongemeubileerd, met raambekleding en verlichting
- Voorkeur voor gezin met kinderen of een koppel
- Huisdieren in overleg, geen grote honden (poes of kleine hond mogelijk)
- Energielabel B
- Twee maanden borg
- Energie en stadsverwarming op eigen naam
De woning ligt in de geliefde wijk ‘Purmer-Zuid’, bekend om het vele groen en de kindvriendelijke sfeer. Basisscholen, het Leegwater zwembad en winkelcentrum ‘Meerland’ zijn op loopafstand bereikbaar. Het gezellige stadshart van Purmerend is binnen tien minuten met de fiets te bereiken. Voor recreatie zijn het Purmerbos en de 45-holes golfbaan dichtbij. Amsterdam ligt op slechts 15 minuten rijden, en ook met het openbaar vervoer ben je er in 20 tot 30 minuten.
Kortom: comfortabel wonen in een moderne, groene wijk met alle voorzieningen binnen handbereik.




























