Te Huur: Prachtige woning in Neck met vrij uitzicht en moderne voorzieningen!
Ontdek het comfort van deze prachtige woning, gelegen op de eerste en tweede verdieping, met een adembenemend vrij uitzicht over de weilanden. Gunstig gelegen in het landelijke Neck, onder de rook van Purmerend en op slechts circa 30 minuten reisafstand van het bruisende Amsterdam.
Recentelijk volledig gerenoveerd met aandacht voor moderne gemakken en behoud van historisch erfgoed. De woning is voorzien van nieuwe elektra, isolatie en leidingwerk. Het gevelzicht is teruggebracht naar de staat van 1948 met zinken dakgoten, en de gehele pandstructuur is in ere hersteld en gerenoveerd.
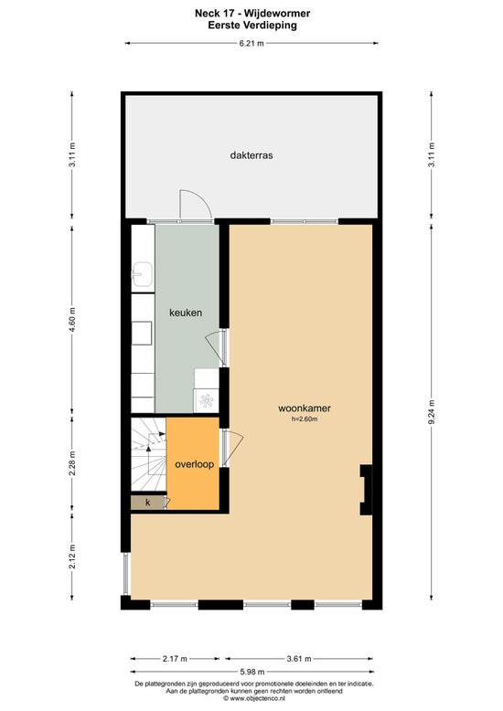
Indeling: Via de entree – waar tevens de wasmachineaansluiting is – leidt een vaste trap naar de eerste verdieping. De woonkamer, met aan de voorzijde een prachtig vrij uitzicht over de dijk en weilanden, strekt zich uit tot de open moderne keuken aan de achterzijde. Er ligt een prachtige visgraat pvc-vloer met vloerverwarming. De open keuken is voorzien van een inductie kookplaat, losse koel- en vriescombinatie, Miele vaatwasser en Siemens combi-oven. Via de keuken bereikt u het dakterras gelegen op het zuidwesten met een elektrisch zonnescherm. Op de eerste verdieping is ook een toilet. Op de tweede verdieping treft u een drietal slaapkamers en een moderne badkamer met douche, wastafelmeubel en 2e toilet. De vliering is middels een los te plaatsen trap te bereiken.
Op de benedenverdieping bevindt zich een depot over de geschiedenis van Wijdewormer met een eigen ingang.
Bijzonderheden:
- Dakterras op het zuidwesten met elektrisch zonnescherm.
- Nieuwe fundering tot 8 meter diep.
- Moderne badkamer met douche, 2e toilet en wastafel.
- Eigen parkeerplaats naast de woning en vrij parkeren aan de dijk.
- Doorzon woon-eetkamer met fraai uitzicht.
- Drie goede slaapkamers met bergruimte.
- Video deurbel.
- Goede bereikbaarheid naar steden zoals Amsterdam, Purmerend en Zaandam.
Neck is een charmant dorp in de gemeente Wormerland, gelegen in de provincie Noord-Holland. Het ligt ten westen van Purmerend en ten noorden van de rivier de Zaan. Het maakt deel uit van de Zaanstreek en staat bekend om zijn landelijke karakter, met traditionele Nederlandse architectuur en historische boerderijen.
Bereikbaarheid: Neck is goed bereikbaar via de nabijgelegen snelwegen en openbaar vervoer, en het is gunstig gelegen ten opzichte van steden zoals Amsterdam, Purmerend en Zaandam.







































