Te huur: sfeervolle hoekwoning met tuin op het zuiden – Wilhelminalaan, Purmerend (24 maanden)
Per 1 juli beschikbaar: deze smaakvol afgewerkte en goed onderhouden hoekwoning op een uitstekende locatie in Purmerend. De woning ligt in een rustige en groene wijk, op loopafstand van het centrum, het station en diverse voorzieningen.
Met drie slaapkamers, een ruime zonnige tuin en een moderne open keuken biedt deze woning volop comfort voor wie tijdelijk ruim en centraal wil wonen.
Indeling
Via de voortuin bereikt u de entree met hal. De lichte woonkamer is gelegen aan de straatzijde en voorzien van een fraaie lamelparketvloer. Aan de achterzijde bevindt zich de royale open keuken met kookeiland, granieten werkblad en geïntegreerde eettafel. De keuken is van alle gemakken voorzien, waaronder een 5-pits gaskookplaat, afzuigkap, oven, koelkast en vaatwasser. Vanuit de keuken is er directe toegang tot de ruim 90 m² grote achtertuin op het zuiden.
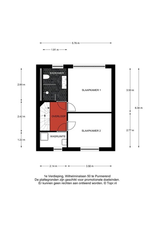
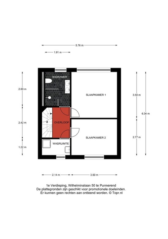
Op de eerste verdieping bevinden zich twee ruime slaapkamers, waarvan één momenteel in gebruik is als kledingkamer, en een moderne badkamer met inloopdouche, dubbele wastafel en toilet. Tevens is er een aparte wasruimte met aansluitingen voor wasmachine en droger.
De tweede verdieping is vergroot met een dakopbouw en herbergt een derde, zeer lichte slaapkamer met een mooi uitzicht.
Buitenruimte
De fraai aangelegde achtertuin op het zuidwesten is een heerlijke plek om te ontspannen in de middag- en avondzon. Er is een terras, een grasveld en een gezellige overkapping. Achterin de tuin bevindt zich een praktische berging, ideaal voor fietsen of tuinspullen. Aan de voorzijde zorgt de groene haag voor extra privacy. Op de begane grond is een zonnescherm aanwezig, en op de verdieping zijn elektrische screens geplaatst.
Kenmerken
- huurprijs: € 2.250,- per maand
- beschikbaar per 1 juli
- huurperiode: vaste periode van 24 maanden
- energielabel B
- waarborgsom: 2 maanden huur
- parkeren: middels vergunning (na inschrijving bij gemeente)
- niet roken
- huisdieren: liever niet, kleine huisdieren in overleg
- wordt verhuurd gestoffeerd (zonder meubels)
Deze woning biedt rust, ruimte en comfort op een toplocatie, met alle voorzieningen binnen handbereik en uitstekende verbindingen naar Amsterdam en Zaandam.
Interesse? Neem gerust contact op voor een bezichtiging.

































